Page suivante
Page précédente
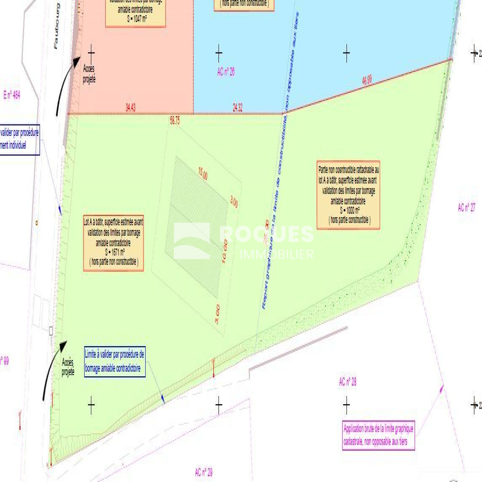
Le Caylar (34520)

Terrain

2671 m²
Réf VTE10007705

Le Caylar, terrain d'une superficie totale de 2671 m² dont 1671 m² constructible, relativement plat, non arboré, bel environnement, viabilité en bordure.

Bilan énergétique

Diagnostics énergetiques
Consommation énergétique
A B C D E F G
Emission de gaz à effet de serre
A B C D E F G
DPE ANCIENNE VERSION
A propos de ce bien Caractéristiques de ce bien
  • terrain 2 671 m²

Financier

Informations financières
Prix net vendeur 80 000 €

Autour du bien

Découvrez le quartier

Simulation

Calcul des mensualités
35000000
Roques immobilier Lodeve Agence